包含转动系统的水泵传递特性研究
摘要:水力机械的传递特性能够表达自身的水力性能以及与之相关的机械性能。所叙述的水泵传递特性理论与实验研究,传递系统除水压和流量特性之外,还包含了水泵转轴的转动力矩和转动速度特性,从而较为完整地表现包含水力与动力两方面的水泵总体特性。分析和实验研究的结果表明,数据处理、传递系数辩识方式以及实验方法是可行的;泵轴的转动特性影响传递矩阵的系数数值,但波动参数之间的基本特性关系保持不变;较为完整的矩阵表达传达了水泵水力和转动特性及其相互关系的一些新信息。研究的基本结论为全面、深入了解水泵的系统特性提供了重要的依据。
关键词:水泵 转动特性 传递矩阵
得益于航空航天工程中伴生脉动推进(POGO)现象的研究成果,水力机械稳定特性的分析技术被日益重视并迅速起来。相关的研究需要流体力学、材料力学、数学、计算机数据处理等基础理论的支持,具体工作涉及数学建模、实验技术、性能模拟、稳定性分析[1~4],研究成果可用于水力机械的稳定性分析、特性参数关联影响评价、基础波动理论探讨等方面,有较高的研究和应用价值。由于实验条件和分析手段的限制,以往的研究基本局限于系统的水力波动特性。如果用传递矩阵表达水力机械传递特性,这个矩阵仅涉及动水压力和流量。,这样的矩阵可以扩展包含其他动态特性参数[5],例如,力矩、转速、导水叶开度和水流空化系数等,但随之而来的实验和分析工作的难度与数量会陡然增大许多。尽管如此,更完整的传递特性研究对于人们了解水力机械的全面性能,特别是某些参数的特有性能,有着重要的研究价值与意义。[6]尝试了在水力波动特性基础上又探讨机械转轴力矩特性的研究,也即基本矩阵里又加进了转轴力矩参数,其对于更复杂的水力机械传递特性研究给出了有用的信息和重要的线索。 水泵水轮机进出水两侧分别连接测试压力钢管,高压侧管内径100mm,低压侧150mm,管壁上分别装设三个压力传感器。水声过滤器连接在测试压力钢管外侧,它们在很宽频带上能保证零阻抗边界条件,而且是借助橡胶膨胀圈与系统其余部分分离。旋阀式激励器装置在压力钢管6测点外500mm和1测点外1000mm,实验运行时运用其中一个。
本文进行的是针对一台模型混流水泵水轮机包含了泵轴转动特性的传递特性研究。他是在水压力和流量参数的传递特性研究的基础上,再系统考虑泵轴力矩和转速波动特性,以水力特性传递矩阵为基础构造更完整的传递矩阵,进而重新设计实验装置与试验方法,处理数据并计算分析,所取得的一些成果信息有助于认识水泵,甚或其他水力机械的系统基础特性。
1 实验装置及其系统激励方式
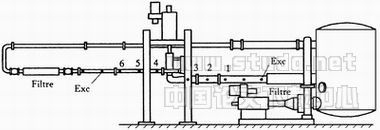
1.1 实验装置 为后面叙述实验数据处理分析的方便,这里先介绍所采用的实验装置。图1所示为瑞士洛桑联邦工程学院水力机械与流体力学研究所PF4实验台。中间受试机械是一台混流式水泵水轮机,运动比转速nq=39(动力比转速ns=3.13nq),叶轮直径152mm,叶片数7个,选用水泵工况运行。泵轴的驱动侧为一台30kW的直流电机,受一台特别设计的调速器控制,试验运转期间能够维持基本不变的旋转速度。当水泵转速为2000r/min时,相应最优工况的流量和比能分别为Q=9.5L/s和E=85J/kg。
图1 EPFL-IMHEF的PF4实验装置
石英压电式压力传感器的信号增益,可以根据传感器敏感度调整进而给出与水压力波动对应的电压输出值。水泵水轮机转轴力矩的测试由泵轴上事先标定过的应变计实施完成。
1.2 系统激励方式 所有的系统传递特性试验数据,都与在系统内进行的人为激励波动密切联系,也即随后展开的水力传动波的辩识、各波动参量数据的直接或间接获取,都将以人为激励波动为基础。
所采用的产生系统水力扰动的旋阀式激励器并联于主要管道上(参见图2示意图)。旋动阀门由一台连接频率变换器的感应电动机驱动,当他的旋塞按给定的变化频率周期性地阻断注入射流时,即对水力系统产生激励信号,旁边设有缓冲空气槽。这种激励器重量小,易于安装,以致可以忽略不计对主要系统的反作用。实验中主要采用一个激励长度上基本对称的三角形频率变化激励模式[6]。 |
|
图2 旋阀式激励器 |
激励波动下可以直接量测记录系统水压力或泵轴力矩波动数据,继而间接计算流量波动参数,甚或泵轴转动波动参数。其中传动波的辩识是进行后续间计算的基础工作。对于一段均质管道,其上震荡模式辩识可以借助三个等距压力传感器的压力信号进行[7]。若p1、p2、p3分别为三个传感器压力波动信号,那么系统中传动波的波速a可以由以下传递函数方程计算得到
| (1) |
式中:ω为震荡角频率(ω=2πf,f为震荡频率),L为相邻压力传感器间距。
此方程应用了平面波假定。上述辩识过程中所处理的波动频率低于250Hz,也即试验系统中管道截面尺寸要较水力波动的波长小得多,符合假定条件。
2.1 原始试验数据的处理方法 机数据采集设备取得的试验数据记录是原始时域数据。如果采样频率12Hz,激励周长取为120s且其上定义120个分析窗口,那么每一个分析窗口延续1.0s且占有512个采样数据。用加汉宁权的傅立叶变换处理每一分析窗口,则水压力数据记录的频域上离散型傅立叶变换系数为
| (2) |
式中:px(n)为水压力傅立叶变换系数,n为谱系数序列,w(k)为窗函数,k为采样数据序列,N为采样数,
,f为频率,fs为采样频率。
如前所述,水力系统的流量波动参数是间接计算得到的,也就是流量复系数qs(n)是通过一组水压力波动传递函数整理计算出来的。数据处理过程中为降低计算误差还使用一测点作信号参照通道,一般取在激励点相反端的试验机械一侧。对于泵轴力矩波动数据记录的处理方式,是与水压力参数的处理类似的,而泵轴的转动速度傅立叶变换系数则又是由泵轴力矩波动特性间接得到,具体方法取决于泵轴上转动速度与力矩波动之间的传递关系。
2.2 泵轴转动速度计算 传递矩阵方程中泵轴转动速度的傅立叶变换系数是通过力矩波动参数间接得到的。整理泵轴系统的关系可得二者传递关系。
泵轴驱动系统如图3所示。Kφ是弹性联轴节上作用力矩与变形角度之比,由联轴节生产厂商提供或在现场试验标定。T是力矩仪计量一侧的受侧力矩,J为力矩仪至弹性联轴节一段的转动惯量。当以Ω表示转动角速度,φ表示变形角,t表示时间,角标0、1分别表示电动机、水泵一侧参数时,这个轴联接系统的平衡方程为 |
|
图3 装有弹性联轴节的泵轴 |
| (3) |
对方程两边再作微分处理,因为
,则
| (4) |
考虑到装置系统中调速器的作用,电动机一侧的Ω0可近似视为常数,而一常数的傅立叶变换在不含零点的频域上等于零,因此,对式(4)作傅立叶变换,即可得到转动速度与力矩的波动传递函数
| (5) |
式中:ω为角频率。
显然,一旦取得有关力矩的计算结果,且已知轴系的转动惯量J和力矩变形系数Kφ,则转动速度的傅立叶系数可由式(5)计算得到。
3.1 传递矩阵 在对实验数据的处理基础上,实验系统的传递特性分析与最终以矩阵形式表达。
3.1.1 矩阵 在线性传播和不受外力作用的假定条件下,单纯水力系统波动向量仅有水压力和流量两种参数,即(p,q)。现保持假定条件不变,将实验系统的泵轴力矩和转动波动参量植入水力波动向量之中。如此,矩阵就有了3×3个元素,也即两向量间传递关系有下列矩阵方程表示
| (6) |
式中:9个mi,j依次为矩阵系数,p、q、T、Ω分别为水压力、流量、泵轴力矩和角速度波动参量,向量中p、q的角标“4、3”表示其信号取自靠近实验机械的两侧信号通道(参见图1)。
当有三组互为独立的实验波动数据时,这个包含9个未知量的矩阵方程可用线性方程解法解算。
3.1.2 系数定义 式(6)中p、q、T、Ω以及mi,j均为频率的复函数系数。按照物理意义,各矩阵系数命名如下:m11、m22为水压力、流量传递系数;m12为水力阻抗系数;m21为水力导纳系数;m13与m23为机械转动阻抗系数;m31与m32为机械转动导纳系数;m33为转动惯性传递系数。其中,m11、m12、m21、m22即原来基本矩阵中的系数,它们描述管道的水力系统特性。
新矩阵中出现的系数m13、m23、m31、m32揭示着水力系统与机械转动部分之间的能量转换关系,而系数m33则表现着惯性能量特性。事实上,m33可由传递关系式(5)间接地得到,m13、m23也可根据实验机械的静态特性估算出来,这样的分析计算可用来检验由实验结果得到的传递矩阵表达的正确性。
3.1.3 系数的无因次表示 式(6)矩阵系数中仅m11、m22是无因次的,不过,其余系数可以借助高压侧特征阻抗z4和水泵叶轮区域水流体积v逐一处理成无因次的形式,也即其余系数的无因次形式分别为m12/z4、m21·z4、m13/(z4v)、m23/v、m31/v、m32/(z4v)、m33(z4vv)。
无因次形式本身也揭示着这些系数的某些物理特性。其中,因子z4示意阻抗或导纳的作用,v示意水力系统与机械转动之间的作用联系。同样道理,m33系数也可以用转动惯量和泵轴转速作因子处理成物理意义更清晰的无因此形式,但为统一和计算简明起见仍采用上面形式。
3.2 实验结果 图4相应为mi,j矩阵系数的一实验计算结果,是完全根据实验的波动数据直接解算矩阵式(6)得到的。
|
|
实验相应的水泵稳态工况试验条件:比能92.8J/kg、流量9.81L/s、转速2000r/min,三组互为独立的实验数据记录相应着两种Perflex弹性联轴节的不同情形。由于泵轴力矩和转速参量的相互转换,20Nm型和50Nm型联轴节分别相应22.2Hz和30.5Hz的共振频率。图中实线表示mi,j复系数实部,虚线表示虚部。
观察分析看到,系数m11、m12、m21、m22显示出,它们有与基于水压力和流量两向量的原基本传递矩阵相同元素的一致性[6],此点也验证了实验结果与矩阵解算的正确性。关于这四个系数,不需过多讨论。
系数m13、m23、m31、m32(甚或又及m33)的一个共同的明显特征,是它们的幅值有沿频率轴逐渐增大的走势。m13、m32的虚部显示的是从转子转动到水压力和从水流到轴力矩的惯性影响,m23、m31实部表达了从转子转动到水流和从水压力到轴力矩的能量联系。
系数m31、m32表现出一个有趣现象:比较刚性轴联接条件下的实验计算结果,这两个系数的数值要小些,粗略观察看,现系数数值约为后者的1/10左右[6]。之所以如此,是因为现在从水压力波动到泵轴的扰动影响部分地转化成了转动速度波动。但也同时能看到,系数曲线形态,也即传递系数的基本特征仍维持原来趋势,这对于理解此现象的内在含义是重要的。
因为转动速度的波动参数是间接计算出来的,即转动速度与力矩的波动关系符合传递函数式(5),故解算的矩阵系数m33可以用式(5)进行预测或检验。分析图中此系数实部与虚部的数值变化与联系能够看到其确实符合式(5)的传递特性关系,此也验证了实验计算结果的合理性。m33共振频率约为20~30Hz,且大于共振频率的频率范围内力矩滞后于转速π/2。
另外,由于力矩对水压力、流量传递函数的相位不象水压力与流量间那样清晰,系数m13、m23、m31、m32曲线可能是抖动的,需要注意小心辩识。若有必要,可以考虑对力矩传递函数加入相位校正处理。
4 结语
本文工作沿用简单水力系统传递特性研究的基本思路,以水力特性传递矩阵为基础,丰富实验手段,引入较完整的泵轴转动特性,构造新的传递矩阵,研究了更全面的系统传递特性。结果表明,所运用的实验概念与方法、数据处理方式以及传递系数的辩识方法是可行的和可取的。研究采用的实验系统中,泵轴的转动特性影响传递矩阵的系数数值,也即可变速度的水泵转子将降低轴力矩响应幅值,但不同波动参数间的基本特征关系保持不变。计算给出的更系统的水泵传递特性的矩阵表达,传达了水力和转动特性及其他们之间关系的一些新信息,这些对于全面了解水泵特性以及深入研究水力机械的特性都是很有意义的。其中的研究成果对于水力机械基础波动理论的深入探讨,对于水力机械的稳定性分析以及系统内部特性参数的关联影响评价等,都有较高的研究和应用价值。
[1] Fanelli M, Angelico G, Escobar P. The Behavior of a Centrifugal Pump on a Steady Pulsating Hydraulic System, Experimental Results [R]. IAHR W.G., Milan, 1983.
[2] Fanelli M, Angelico G, Escobar P. A Transfer Matrix for the Dynamic Behavior of a Turbomachine [R]. IAHR W. G., Mexico, 1985.
[3] Jacob T, Prenat J E. Identification of a Hydraulic Turbomachine's Hydro-acoustic Transmission Parameters [R]. IAHR W. G., Milano, 1991.
[4] Jacob T. Controle et mesure des fluctuations de vitesse de rotation de la pompe-turbine PF4 [R]. internal paper in IMHEF-EPFL, 1994.
[5] Fanelli M, Sciccardi F. Reponse d'nue turbomachine hydraulique a des fluctuations des parameters dynamiques du circuit [R]. La Houille Blanche, 1980, No 1/2.
[6] 杨建设. 离心水泵的扩散传递矩阵研究 [J]. 学报,2003,(2).
[7] Bolleter U. Using Transfer Function Measurements to Determine Energy Propagation in Fluid Lines, with Application to Centrifugal Pump Systems [C]. Int. congr. On recent dev. In acoustic intensity meas., Senlis, 1981.




