垂直墙背挡土墙土压力分布研究
摘要:在填土水平且无粘性条件下,分析垂直墙背挡土墙的主、被动土压力分布。通过研究极限状态土体内主应力拱的应力,得到挡土墙的土压力系数。取滑动土楔内水平薄层土体单元进行分析,推求挡土墙土压力的分布及合力的公式,并用试验结果验证。研究表明,本文所得土压力合力与库仑解相等,但土压力分布并非直线,主动土压力的合力作用点高度大于三分之一墙高,而被动土压力的合力作用点高度小于三分之一墙高。
关键词:挡土墙 土压力 主应力拱
在经典土压力理论中,认为土压力呈线性分布,而工程实测结果和模型试验表明,土压力是曲线分布[1,2]。本文引用主应力拱的概念,
利用水平层分析法,对垂直墙背挡土墙后填土水平且无粘性条件下的土压力分布进行研。
1 主应力拱及侧向土压力系数
1.1 挡土墙模型 为分析方便,取如图1所示的挡土墙模型,假定:①ab、cd是二刚性平行墙背,相距B,墙面粗糙;②两墙之间填土水平且无粘性;③在外力作用下,两墙产生相向(背)运动,土体达到被(主)动极限状态。
1.2 大主应力拱应力和理论被动土压力系数 在挡土墙模型中,因问题的对称性,两墙中点E的大主应力σ1为水平,而靠近边墙的A、C点,因边壁摩擦影响,大主应力发生偏斜并与墙面形成θ=45°+φ/2的夹角[3],这就使两墙之间的大主应力迹线成为一条对称的下凸曲线,称为大主应力拱,如图2所示,其中φ为土体的内摩擦角。大主应力拱上E点和A、C点的应力状态可用莫尔应力圆表示。
根据图1,由A点微分单元水平力及垂直力的平衡条件可得
| (1) |
| (2) |
将式(1)两端同除以小主应力σ3,并认为土体处于朗金被动状态,即σ1/σ3等于朗金被动土压力系数Kp,式(1)变为
| (3) |
由图2可知:σh=σ1+σ3-σv,将其代入式(3),得
| (4) |
式(3)除以式(4),得到理论被动土压力系数
| (5) |
式中:σh、σv、τ分别为A点的水平应力、垂直应力和剪应力。
对于光滑墙面,θ=90°,则Kp1=Kp;对于粗糙墙面,θ=45°+φ/2,则Kp1=(1+sin2φ)/(1-sin2φ)。若θ为大主应力拱内某点大主应力与铅垂直的夹角,以上各式即表示该点的应力及其比值关系。
1.3 大主应力拱形状和实用被动土压力系数 由图2可见,大主应力拱单元的边界是由小主应力面形成的曲面,为了满足力矩平衡条件,大主应力拱内的应力应保持为常量。假定土拱单元的厚度和土的容重不变,则大主应力拱的形状为一条悬链线,令墙土摩擦角δ等于土体的内摩擦角φ,其方程为[4,5]
| (6) |
在墙壁处,x=±1,其斜率为
| (7) |
由式(7)可以求得不同φ时的拱形参数a,结果见表1。根据φ及其对应的a,可由式(6)绘出大主应力拱的曲线,由式(3)~式(5)绘出σh/σ3、σv/σ3、σh/σv应力比值曲线,见图3。为了实用,对不同的φ,利用式(4)求大主应力拱内平均垂直应力σav与σ3的比值,经数值分析,当φ=0°~40°时,σav/σ3=1.00~1.24。则实用的被动土压力系数为
| (8) |
垂直墙背挡土墙后的土体到达被动极限状态时,忽略墙背对土体的影响,土体内破裂面 上各点的应力状态与图1中E点的应力状态相同,三角形滑动土楔内的大主应力拱近似为上述 曲线之半,挡土墙被动土压力系数可由式(8)计算。 |
| ||||||
|
|
(a)拱曲线 | (b)被动状态时拱内应力比值曲线 |
图3 拱曲线及应力比值曲线 | |
1.4 小主应力拱及主动土压力系数 由分析可知,土体模型中的二平行墙产生向背运动,并使土体达到主动极限状态时,小主应力迹线形成的小主应力拱与大主应力拱有完全一样的形状,此时,两平行墙给土体的剪应力向上,图2中的大主应力拱变成了小主应力拱,莫尔应力圆中的σh和σv互换,拱内应力及其关系为
| (9) |
| (10) |
| (11) |
| (12) |
理论主动土压力系数为
| (13) |
式中:Ka为朗金主动土压力系数;θ为小主应力与铅垂直的夹角;其余符号意义同前。Ka1和Kp1互为倒数。
实用主动土压力系数为
| (14) |
2 土压力公式
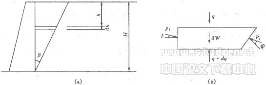
2.1 被动土压力 被动极限状态下,墙后滑动土楔如图4所示,β为土体内破裂面与铅垂面的夹角。在楔体内某一深
图4 土契内的水平层单元 |
度h处,取一水平薄层单元,其上的作用力包括平均垂直土压力(平均垂直应力)q、单元重力dw、墙体和稳定土体对土楔的分布作用力p1、p2。由水平薄层单元水平力的平衡条件得
| (15) |
由竖直力的平衡条件得
| (16) |
略去二阶微量,注意到p1=Kpwq/cosδ,将式(15)代入,式 (16)变为
| (17) |
式中:γ为回填土的重度;D=1-KpwG,G=[tan(β-φ)-tanδ]/tanβ。
为简单起见,取边界条件h=0时,q=0,得微分方程(16)的特解
| (18) |
被动土压力的分布p与p1大小相等、方向相反:
| (19) |
对式(19)进行积分,得被动土压力的合力
| (20) |
由力矩法可求得合力作用点到墙底的距离
| (21) |
为使合力P最大,令dP/d(tanβ)=0,得破裂面与铅垂面夹角β之值
| (22) |
式中:n1=1-tanδtanφ;n2=tanδ+tanφ;n3=tanφ。
2.2 主动土压力 分析表明,主动状态时的土压力分布、合力以及其作用点高度的表达式与被动土压力完全相同,但此时需用Kaw代替Kpw,G和tanβ的计算式应分别改为
| (23) |
| (24) |
3 验证分析
利用前苏联学者查嘎列尔[1]的主动土压力试验数据,对本文公式进行验证分析。试验用挡土墙高4.0m,墙后填土为海沙,φ=37°?,γ=18kN/m3,δ=27°~37°,主动极限状态时测得的主动土压力分布如图5中虚线,合力作用点高度为1.6m。利用本文公式,取δ=27°所求主动土压力分布如图中实线,合力作用点高度为1.8m。
两条曲线十分接近。文中公式所得主动和被动土压力的合力与库仑解相等,但合力作用点到墙底的距离不是定值H/3。主动土压力呈凸曲线分布,其合力作用点高度为(1/3~1/2)H,与[1]中的许多试验结果相吻合。被动土压力呈凹曲线分布,其合力作用点高度小于H/3。
4 结 论
(1)大、小主应力拱形状相同,均可用悬链线表示。理论主动土压力系数和理论被动土压力系数互为倒数。(2)根据假定,文中公式可使用于填土水平且无粘性的垂直墙背重力式挡土墙。主动和被动土压力的计算公式形式相同,但参数不同。(3)水平层分析法以库仑假定为前提,故本文所得土压力合力与库仑解相等,但合力与侧压力系数无关。(4)墙背垂直时,主动土压力呈凸曲线分布,其合力作用点高度大于H/3;被动土压力呈凹曲线分布,其合力作用点高度小于H/3。
参 考 文 献:
[1] 克列因.散粒体力学[M].陈万佳译,北京:人民出版社,1983,234-248.
[2] 顾慰慈.挡土墙土压力计算[M].北京:建材出版社,2000,167-168.
[3] Kellogg C G.Vertical Earth Loads On Buried Engineered Works[J].Journal of Geotechnical Engineering,1993,119(3):487-506.
[4] Kingsley Harop?Williams.Arch in arching[J].Journal of Geotechnical Engineering,1989,115(3):415-419.
[5]Richard L Handy.The arch in soil arching[J.Journal of Geotechnical Engineering,1985,111(3):302~318








