手术室净化设计探讨
摘要:通过对目前手术室使用状况的了解,指出净化设计的重要性。对比国内外的手术室设计标准,结合国内的情况提出手术室的设计要点,并通过实例加以说明。
关键词:洁净手术室 高效过滤 压力控制 节能措施
1 概述
近年来随着的,人们的生活水平普遍提高,以从过去的温饱型向健康型过渡。人们对健康越重视,必定要求加快医疗条件和医疗设施的改善。同时随着科技的发展,大量的新观念和新技术被接受和应用,这为改善的医疗环境和医疗设施创造了一个良好的条件,同时,也对医院的医疗设施提出了更高的要求。尤其是对医院手术室的设计提出了新的要求。从一百多年前英国医生李斯特最早认识到悬浮污染物对手术有害作用,到本世纪三十年代,无菌技术的普遍接受,再到现在层流技术的应用,这些均证明术后感染率同空气的洁净程度直接有关,因此高效洁净的手术室空气处理方法已被提上议事日程。
2 过去
过去国内大多数医院手术部比较简陋,基本为非洁净手术部,主要依靠消毒液进行消毒,易产生交叉污染。在室温控制方面则采用窗式空调和风机盘管进行调节。而窗式空调自身是一个发尘发菌源,长期使用会使室内尘埃数和细菌浓度增高。普通风机盘管表面及集水盘自身是一个污染源,容易积灰滋生细菌,特别在夏季有污染室内空气的危险。同时风机盘管的维修及保养均在室内进行,不但会影响手术室的使用率,而且由于管配件多使用时易泄露,并在维修时由于风机盘管的拆装机内的存水都易污染吊顶产生二次污染,所以用这二种形式的空调都不能用于洁净手术室。另外普遍存在着低级别的净化空调系统,这些系统的新风量不足,送风量也不够,也难以满足有一定洁净度要求的手术的进行。
同时在建筑布局上也存在着不合理性,主要表现为清污路线不分。手术后的污物和无菌手术的器械及医生从同一条走廊进出,这样很容易产生交叉污染。
基于上述情况,过去国内手术部内很少能形成合理的正压分布和有序的气流组织。
3 合理的手术室布局
根据国外手术室的成功范例及《医院洁净手术部建筑技术规范GB50333-2002》的要求新建手术区必须严格按照三区二通道的原则布局(即手术区,辅助区,其它用房区,洁净走道和准洁净走道)术前术后人员及无菌物品从清洁走道通过,术后污物从污物通道通过,这样清污分离可使手术后的污物及时得到处理,从根本上减少了交叉污染的可能性,同时也使平面布局更趋合理,达到将建筑平面与净化空调系统有机地结合在一起,使它既满足净化技术要求又符合医院建筑设计和管理的要求。
4 净化设计
4.1 净化控制的目的和要点
净化设计的目的是通过净化设计有效地阻止室外污染物侵入室内,降低术后感染率,同时迅速有效地排除室内的污染空气,防止病菌的扩散。
根据设计目的,在医院手术室设计中注意以下几点:
A 用空气过滤的方法有效去除送入空气的细菌和尘埃。
B 依靠气流组织有效地稀释和排除医护人员的发尘(菌),使室内,尤其是关键部位达到高度无菌程度。
C 控制好手术部内的压力梯度,保证不同区域间的合理气流流向和压力分布,防止外界污染物的侵入。
D 保持合适的温湿度,降低人体发菌量及室内细菌繁殖。
E 有效排出废气和有害气体,保证室内空气新鲜和空气品质。
4.2 合理的气流组织
众所周知手术是直接关系到患者的生命安危,手术的发展很大程度上取决于手术感染控制技术的发展。在欧美等发达国家其手术室均采用全空气系统。六十年代初采用ASHRAE指南规定,采用全新风系统。每个手术单元换气次数8-12次。室温25.6度,相对湿度55%。室内排风汇集到排风总管,利用全热交换器热回收后再排出室外。随着技术的发展,到七十年代室内空气允许循环使用,换气次数增加到25次,新风至少为5次,一般都将回风取到最大值。我国于88年10月颁布行业标准JGJ49-88《综合医院建筑设计规范》,军队于95年颁布《军队医院洁净手术部建筑技术规范》。根据这二个规范和《医院洁净手术部建筑技术规范GB50333-2002》国外的有关资料并加以改进,设计了符合国情的净化系统(附图)。在该系统中,用独立的新风机组,供应每个手术室的新风,由于上海地区空气的含尘浓度较高,设置独立新风机组能经常方便地清洗初效过滤器,以及更换新风机出口端的中效过滤器,从而避免因手术单元中的高效或亚高效过滤器经常更换而造成较大的经济损失。在手术单元中,顶棚布置高效过滤器,在两侧距地面不超过500mm处布置回风口,这样能合理地组织室内的气流,防止室内细菌粒子的积聚,并通过合理的气流组织迅速加以排出,保证室内的洁净度。而上送侧回的方式使手术台设置在手术室的中央区域,医生及有关人员在手术台的二侧,气流由上部风口送出,经手术台后再从两侧回,这样能最大限度地保证手术台的高度无菌程度。
4.3 温湿度及压力控制
按照《医院洁净手术部建筑技术规范GB50333-2002》的要求手术室的温湿度必须控制在一定的范围内,因此设计中设定手术室温度在t=22-25℃;相对湿度35-60%,根据不同大小的房间配置相应的空调机和加湿器。
按照三区二通道的原则布局,手术部的压力由大到小排列为特殊洁净手术室、一般洁净手术室、洁净走廊、垂直通道及污物廊。洁净走廊的净化级别比一般洁净手术室低或相等,故两者间存在压差。污物廊是整个手术部中级别最低的所以手术室对污物廊的压差大于5Pa.这样就能保证不同区域间的气流的合理流向和防止外界污染的侵入。
对于手术室来讲,为了维持本身房间的洁净度,免受邻室的污染,须保持相对于邻室较高的空气压力,即相对于邻室维持一个正的静压差。而静压差的存在起到了在门、窗关闭的情况下,防止室外空气由缝隙进入洁净室。另外当门开启时,应有足够的气流向外流动,把人瞬时带进的污染空气降低到最低程度。根据《空气洁净技术措施》中的规定,要防止缝隙渗透,一般两相邻房间应保持5Pa的压差,而对室外应保持15Pa的压差。对100级手术室,按《洁净室施工验收规范》规定,其正压必须满足开门时,距门0.6米处洁净度不低的要求,即保证在开门瞬时开启时人所带进的气体不深入门口0.6米以外的地方。(见图)空气调节设计手册中规定,一般洁净室的工作区在离地0.8-1.5米处。垂直层流手术室流速为0.25-0.3m/s,《医院洁净手术部建筑技术规范GB50333-2002》而门高为2.0米左右,则Vo/V=(2.0-0.8)/0.6 ,V=0.15m/s ,即当外界V不大于0.15m/s时是不会影响室内层流的,根据《空气洁净技术原理》中提出人在进门时带进气流速度为0.2m/s,所以从洁净室压出气流速度为:V1=0.2-V=0.2-0.15=0.05m/s。假设手术室门宽1.5米,则门的面积为:A=2*1.5=3.0 平方米所以风量 Q=A*V=3.0*0.05=0.15立方米/秒 即540立方米/小时。因此当手术室内的正压风量大于540立方米/小时就能满足层流的要求。
在系统正常运行时,可在系统中设置排风系统排除多余气体,使手术室的正压值始终在一合理的数值上。
另外还应注意设置一间或几间能把手术室室内正压变成负压的洁净手术室,以防止传染病患者把病菌通过空调系统传染给他人。

4.4 高效过滤器的设置
在净化工程中,过滤器一直起着很大的作用,手术单元的净化级别和过滤器的过滤效率直接相连,对于只有普通净化级别要求的手术单元一般配置亚高效过滤器。而对特殊净化手术室相应的在末端配置高效过滤器。末端空气过滤器的DOP效率不低于99.97%。为了提高末端过滤器的使用寿命净化空调循环机组应采用三级过滤的形式。
4.5 节能措施
为了提高能源利用率,在系统设计中注意节能技术的应用,由于整个手术部中存在只有部分手术室使用的情况,故对独立设置的新风机和排风机进行连动控制,即新风机(变频)随着手术室使用数量的增加而自动增加,直至满负荷。排风机也相应地开启,(排风机也采用变频机)这样就可根据风量的不同而采用不同转速,从而达到节电的目的。
如果整个手术室系统中手术单元比较多,在晚间使用低峰时应有几间可以单独使用带独立冷热源的手术室,这样整个冷冻系统不开启,而只开启带独立冷热源的手术室,以达到节能的目的。
在热回收方面,可采用显热回收的方法回收排风系统中的废能量,用以预冷预热新风,从而减小新风机的能量消耗,达到节能的目的。也有采用卡萨巴全热回收装置对新排风进行处理的,该装置集能量回收和杀菌消毒于一体,通过化学溶液喷淋来实现能量的转换和消毒的作用。从而实现预冷和预热新风的目的。
4.6 自控系统
由于手术室设计的特殊性,决定了自动控制在手术室中的重要地位,而手术室的温湿度是致关重要的,这就要求根据室内回风参数对冷(热)水供水量、送回风比和蒸汽加湿量进行调节。另外,根据手术室室内压力的要求,调节新排风比率,保持室内正压,达到正压要求。
设置故障报警信号对过滤器堵塞进行报警。
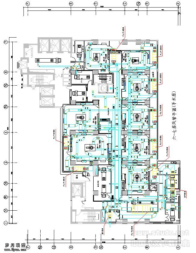
5 设计实例
在上海某三级甲等手术室设计中,根据设计要点进行净化设计。该医院手术部共有四个楼面,每层约1000平方米,五层为手术室准备层,六、七层为一般洁净手术室,(附图)八层为特殊要求手术室,布局上每层按污物廊回收型设置双通道,医生及术前和术后人员从中间清洁走道通过,手术后的污物从外侧的污物廊快速运出。手术器械则由五层消毒室通过。消毒室内的专用电梯直接送至各层无菌储藏室。医生在五层消毒后从专用的五层至八层的楼梯或电梯进入各层。专用垂直楼梯在顶层设置排风。使垂直楼梯对洁净走廊保持相对负压。专用电梯前室设置正压送风口,使前室对洁净走廊也保持一定的压差。
六、七层的洁净手术室根据面积大小不同分别选用不同风量的净化空调机组,空调机组用二级过滤,同时在手术室内设置亚高效过滤器,回风从二侧回,新风经三级过滤并经亚高效过滤后吹出。每间手术室在靠近气体吊塔处设置单独排风口,并连接到排风总管排出室外。八层则由高效过滤器代替末端的亚高效过滤器,其余设计同六、七层。
总之,在设计中要认真对待出现的不同情况并加以分析,使设计更合理更符合国家规范,也能更好地满足业主的要求。
1 《空气调节设计手册》—工程设计院主编 北京:中国建筑出版社
2 《空气洁净技术原理》--许钟麟编 同济大学出版社
3 《洁净室施工验收规范》--中国建筑工业出版社JGJ71-90
4 沈晋明 德国的医院标准和手术室设计 《医院洁净手术部建设标准》调研报告之一
5 沈晋明 日本的医院标准和手术室设计 《医院洁净手术部建设标准》调研报告之二
6 沈晋明 美国的医院标准和手术室设计 《医院洁净手术部建设标准》调研报告之三
7 沈晋明 英国的医院标准和手术室设计 《医院洁净手术部建设标准》调研报告之四 8朱莹、沈晋明 手术室净化空调系统的模式及比较 9严建敏、沈晋明 上海医院洁净手术室现状及改造对策
附图:













