别墅(户式)中央空调系统设计
摘要:小型风冷式冷水机组安装便捷,无需机房,省去了冷却塔,只需连通冷热水管路,水泵即可进行系统冷水循环。而且机组可采用自动化控制、节水节电和对环境污染小等优点。风冷热泵式和水冷热泵式应用于小型别墅的空气调节很好。对于水冷热泵来说,需设置专用的冷却塔等装置。因此,小型风冷热泵式空调很适合于小面积的场合使用。
关键词:别墅 风冷热泵 水冷热泵 风机盘管
一、方案选择
大型空调的冷水机组多为水冷式,而且一般制冷量大,不太适合于小型建筑的多室中央空调系统。
小型风冷式冷水机组安装便捷,无需机房,省去了冷却塔,只需连通冷热水管路,水泵即可进行系统冷水循环。而且机组可采用自动化控制、节水节电和对环境污染小等优点。
正因为如此,系统采用中央空调的小型风冷式冷水机组配合风机盘管空调器的方案。
二、负荷
根据中央空调的冷负荷系数法计算得出的结果如下:
名称 | 建筑 负荷 | 照明 负荷 | 人数 | 人体 负荷 | 新风量 | 新风 负荷 | 总负荷 | 面积 |
客厅 | 65 | 30 | 8 | 57 | 35 | 90 | 242 | 25.2 |
厨房 | 12.15 | |||||||
餐厅 | 40 | 25 | 4 | 63 | 35 | 100 | 228 | 11.34 |
西、南 卫生间 | ||||||||
西卧室 | 35 | 20 | 1 | 13 | 50 | 40 | 108 | 10.8 |
南卧室 | 75 | 10 | 1 | 13 | 50 | 24 | 122 | 12.15 |
东卧室 | 80 | 20 | 2 | 25 | 50 | 48 | 173 | 16.8 |
中通道 | 5.94 |
三、风机盘管选型
根据中央空调的风机盘管选型方法,计算后得出的结果如下:
名称 | 冷量 | 风量 最大 | 风量 最小 | 风机盘管 型号 | 水量 | 水压 损失 | 接管 管径 |
客厅 | 6098.4 | 2879 | 800 | FP-12.5WA | 1140kg/h | 35kPa | DN20 |
厨房 | |||||||
餐厅 | 2585.5 | 1159 | 360 | FP-6.3WA | 600kg/h | 15.8 kPa | |
西、南 卫生间 | |||||||
西卧室 | 1166.4 | 648 | 250 | FP-5WA | 480kg/h | 12 kPa | |
南卧室 | 1482.3 | 712 | 300 | FP-4WA | 380kg/h | 11.8 kPa | |
东卧室 | 2906.4 | 1129 | 400 | FP-6.3WA | 600kg/h | 15.8 kPa | |
中通道 | 475.2 | 228 | 150 | FP-2WA | 180kg/h | 8 kPa | |
合计 | 14714.2 | 3280 kg/h |
注明:产品选自《申菱FP—WA系列空调器》手册。
四、风冷热泵机组选型
风冷热泵机组:风冷热泵机组的冷负荷为14714.2*1.1= 16185.5W,我们选择TLC系列小型风冷式冷水机组的TLC—05。其参数为:
冷量15000Kcal/h,冷水流量6m3/h,水压损失2.3mH2O,接管管径DN70
膨胀水箱:膨胀水箱选用V=0.6m3即可。
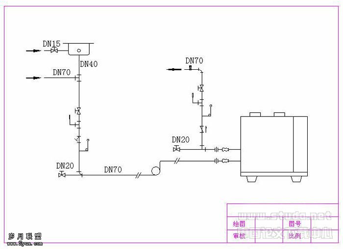
五、水管设计

系统水管图
管段 | 水量 | 水速 | 管径 |
4 | 860 | 0.50 | 25 |
4-3 | 1460 | 0.50 | 32 |
3 | 2060 | 0.46 | 40 |
2 | 2140 | 0.30 | 50 |
1 | 3280 | 0.24 | 70 |
六、风系统设计
1.送风系统
名称 | 风口型号 | 个数 | 名称 | 风口型号 | 个数 |
客厅 | 矩形风口250×250 | 2 | 西卧室 | ||
厨房 | 南卧室 | ||||
餐厅 | 矩形风口200×200 | 2 | 东卧室 | ||
西、南 卫生间 | 中通道 |
2.排风系统
名称 | 风口型号 | 个数 | 名称 | 风口型号 | 个数 |
客厅 | 西卧室 | ||||
厨房 | 南卧室 | ||||
餐厅 | 东卧室 | ||||
西、南 卫生间 | 排风扇风量400m3/h;矩形风口200×200一个 | 中通道 |
七、性参数
建筑面积:157平方米 空调面积:82.23平方米
建筑面积指标:103W/m2 空调面积指标:190W/ m2
八、本设计的优点
1.市场的户式中央空调很流行,对于我们来说,做户式中央空调的设计实例有助于就业。
2.原来的全空气系统或“风机盘管加新风系统”中央空调设计,我们学习起来很难,而且整个系统很大;而小型空调器会给房间装饰带来不便,且维修比较麻烦,同时我们也很难接触到大型设计性的工作,所以户式中央空调的设计很值得推荐。
3.南方地区的经济发达,别墅的越来越广泛,人们对空调的品质要求越来越高。下表给出了几种空调的特点:
系统形式 | 设计 成本 | 耗电量 | 运行管理 | 室内空气效果 | 安装、维修 | 控制 | 受控状态 |
全空气系统 | 高 | 大 | 需要专人管理 | 很好 | 复杂 | 难 | 受时间控制 |
风机盘管加新风系统 | 高 | 大 | 需要专人管理 | 很好 | 复杂 | 较难 | 受时间控制 |
分体空调 | 低 | 小 | 不需专人管理 | 很差 | 简单 | 简单 | 不受时间控制 |
VRV变频空调 | 中 | 小 | 不需专人管理 | 很差 | 较简单 | 很难 | 不受时间控制 |
水冷热泵式 | 较低 | 比分体空调稍大 | 不需专人管理 | 较好 | 较简单 | 简单 | 不受时间控制 |
风冷热泵式 | 较低 | 比分体空调稍大 | 不需专人管理 | 较好 | 较简单 | 简单 | 不受时间控制 |
从上表可看出,风冷热泵式和水冷热泵式应用于小型别墅的空气调节很好。对于水冷热泵来说,需设置专用的冷却塔等装置。因此,小型风冷热泵式空调很适合于小面积的场合使用。
九、附图
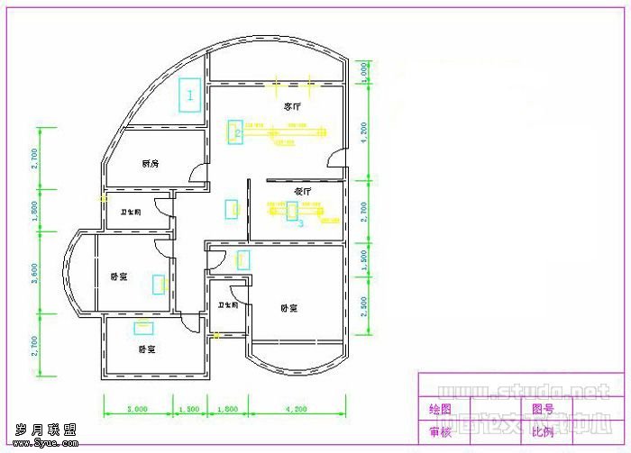
图一:建筑结构图

图二:设计施工说明及设备明细表

图三:水管平面图

图四:风管平面图

图五:水系统原理图

十、书及指导老师
参考书:
1.《中央空调设计与施工》
2.《空气调节技术》
3.《中央空调》
4.《空气调节设计规范》
设计、施工说明及设备明细表
一、设计参数
名称 | 温度℃ | 相对湿度% | 名称 | 温度℃ | 相对湿度% |
客厅 | 27 | 60 | 西卧室 | 26 | 60 |
厨房 | 南卧室 | 26 | 60 | ||
餐厅 | 27 | 65 | 东卧室 | 26 | 60 |
西、南 卫生间 | 中通道 | 27 | 60 |
二、施工说明
1.机组直接安装在水泥基座上,应高出地面150mm
2.机组做消声处理,材料用离心玻璃棉。
3.冷水管道采用1.1kg/m3的玻璃棉保温,厚度为25mm(室内)50mm(室外)。
4.膨胀水箱的水面应高于配管最高点1m以上。
5.水系统最高处设自动放气阀。
6.试压压力0.75Mpa,保持24h。管路与机组不可一起试压。
三、主要设备明细表
名称 | 单位 | 数量 | 备注 |
风冷热泵机组TLC—05 | 台 | 1 | |
膨胀水箱V=0.6m3 | 个 | 1 | |
风机盘管FP-12.5WA | 台 | 1 | |
风机盘管FP-6.3WA | 台 | 1 | |
风机盘管FP-5WA | 台 | 1 | |
风机盘管FP-4WA | 台 | 1 | |
风机盘管FP-2WA | 台 | 1 | |
排风扇400m3/h | 个 | 1 | |
矩形风口250×250 | 个 | 2 | |
矩形风口200×200 | 个 | 4 | |
百叶风口630*400 | 个 | 1 | |
百叶风口500*320 | 个 | 1 | |
百叶风口400*250 | 个 | 4 |











