暗挖通道穿越既有地铁车站施工技术探讨
摘要:北京地铁10号线芍药居车站与既有13号线城铁车站的换乘通道,采用浅埋暗挖法施工穿越既有13号线车站。对暗挖施工换乘通道的关键施工技术进行了阐述,并对施工中的监控量测提出了建议。
关键词:浅埋暗挖;既有车站;施工;监控量测
1工程概况
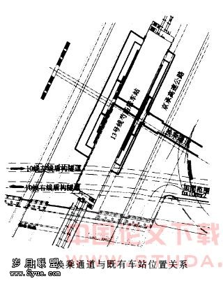
北京地铁10号线芍药居车站位于东西向太阳宫大街和南北向京承高速路交汇处的东北侧。既有城铁13号线芍药居车站为地面2层3跨侧式车站,站宽18.8 m,长125.1 m;钢筋混凝土框架结构,在整体道床下为筏板基础,等距离设有两道变形缝,基础底面标高为40.905 m。新建地铁10号线左、右线隧道均从其下方穿越,隧道顶距车站基底9.215 m;建设中的10号线车站与既有车站形成换乘,换乘通道顶部紧贴车站中部筏板基底下穿。地铁10号线车站类型为地下双层岛式车站,2层3跨矩形框架结构,设5个出人口(含1个预留口和1个残疾人出人口),1个换乘通道、4个换乘口及2座风亭。2座车站的换乘通道采用暗挖法施工,通道与既有车站的位置关系如图1所示。

1.1工程地质情况
拟建场区地质情况如图2所示,地层层序自上而下依次为:

(1)人工填土层①层和①1层;
(2)第四纪黏性土层:粉土③层,黏土③2层;粉土④2层,粉质黏土④层;
(3)第四纪全新世冲洪积层:粉质黏土⑥层,黏土⑥1层,粉土⑥2层。
换乘通道在粉质黏土、粉土中。
1. 2地下水状况
根据地质勘查报告和10号线芍药居站主体基坑降水实际情况,该段地下水由上至下分为3层:
(1)表层滞水,水位标高为33.1741.55 m,透水性一般,不影响暗挖通道的施工;
(2)潜水,水位标高为26.2331.47 m,微承压性,施工过程中主要受该层水影响;
(3)层间潜水,水位标高为20.20-26.70 m,施工过程中涉及的较少。
2施工方案
根据既有车站与换乘通道的位置关系,由于受到施工条件的限制,该暗挖段工程不具备起拱条件,因此采用平顶直墙浅埋暗挖施工,如图3示。

具体施工步骤如下:
(1)对通道两侧进行水平旋喷桩注浆加固;
(2)通道施工掌子面按照自左向右的顺序分别进行洞室上部小导管注浆,分步开挖洞室,并及时架设临时钢支撑;
(3)开挖完成后及时架设钢格栅,喷射初衬混凝土,封闭成环;
(4)拆除通道左侧临时钢支撑,进行左侧防水、保护层的施工,随后进行左侧部分的二衬结构的施作;
(5)倒换右侧临时钢支撑;
(6)进行通道右侧部分防水、保护层的施工,随后进行右侧部分二衬结构的施作;
(7)通道二衬施工完成,待二衬强度达到设计强度的80%以上拆除通道内临时钢支柱。
支撑拆除施工之前,先根据设计要求进行结构变形监测布点。在拆除施工阶段加密监测频率,监测的重点是拱顶下沉、结构收敛和地表沉降,如变化绝对值或变化速率超过警戒值,立即采取措施,控制变形继续扩大。如拱顶下沉加大,则在拱顶位置设置临时钢支撑,控制下沉,同时缩短拆除段长度。支撑拆除施工要求快速施工,尽快使二衬成环。
3施工中的监控量测
换乘通道暗挖施工过程中,对既有车站以及施工过程中通道的监测工作,一方面可以及时了解地层位移、结构变形、既有车站等的实际状态,对比分析设计条件与现场实际的差异,以确定和调整下一步以及后续类似工程的设计与施工工艺,不断完善施工工艺,确保施工安全合理。同时,在通道施工过程中进行的监控量测工作有利于正确估计通道施工过程中支护体系的稳定性,掌握通道施工对周围环境的影响,为既有车站的安全提供保障。此外,通过接受反馈信息,合理安排下一步的施工工序,积累施工数据,使施工更加安全,工程质量更好。监控量测流程如图4所示[2]。

3.1结构沉降监测
结构沉降是直接反映车站结构变形的一项监测内容,根据具体的施工环境和要求,在车站结构上沿结构纵向,以穿越通道的中心点为中心向两侧分布。分别在结构两边侧墙布设两条测线,按照近密远疏的原则进行分布。
3. 2道床裂缝监测
道床裂缝是结构变形监测的关键部位,在暗挖施工影响范围内的裂缝上布设测缝计监测裂缝的变位情况。
3. 3轨道水平间距监测
在轨道上布设相应的轨道水平间距监测点,以便更好地了解轨道水平间距的变化。
3. 4土体位移监测
由于换乘通道暗挖施工所处的实际环境较为复杂,因此施工的拢动不可避免地会造成施工通道周围的土体产生不同的水平和竖向位移。因此在施工过程中应该布设土体的分层沉降测点和土体的水平位移测点,以便随时了解由施工对周围土体产生的扰动影响。
已建工程实例证明,换乘通道暗挖施工下穿正在运营的铁道结构,对既有线路所造成的影响主要包括车站的沉降、结构的弯曲和扭曲变形、已有裂缝的扩展和错动,并由此引发轨道几何形位的改变:如钢轨顶面相对高差(轨道水平)变化、轨道中心在水平面上的平顺性(顺轨向)变化、轨道沿线路方向的竖向平顺性(前后高低)变化等。如果处理不当,这些变化不仅会引起既有线通道结构的内力增加,而且有可能会导致钢轨顶面水平超差、轨向平顺超差或前后高低超差,形成“三角坑”、“吊板”、“暗坑”等病害,使行车平顺性变差,诱发冲击、摇晃甚至于造成脱轨,对行车安全造成重大威胁。因此在施工过程中采取相关的监测措施是非常必要的。
4结语
采用暗挖法修建换乘通道下穿既有地铁车站,控制结构沉降对保证既有线路列车的正常安全运营十分重要,施工中应注意以下问题:
(1)车站该段初衬为平顶直墙结构,侧向土体压力较大,在初衬仰拱未封闭前,为控制墙体钢架底端的位移,应尽早施工仰拱、封闭成环,增加支护结构的稳定性。
(2)由于沉降的大部分是发生在施工过程中的,采用正确的工法和有效的措施是控制沉降的关键,因此必须重视施工过程的控制。
:
[1]崔玖江.论北京地铁新线土建工程施工安全和质量管理[(J].市政技术,2005,(增刊2):24-27.
[2]苏志杰.平顶直墙结构浅埋暗挖法在地下通道中的应用[升铁道建筑,2006,(6):11-13.
[3]张素英.超浅埋暗挖平顶直墙结构施工技术田工程质量,2001,(9):38-40.











