北京地铁五号线和平里北街站结构设计的几个问题
【摘 要】 从北京地铁五号线和平里北街站结构设计中既有管线道路的改移、疏解、危房保护的等方面,阐述了结构设计过程中几个问题的处理方法。
【关键词】 管线道路改移; 交通疏解; 危房保护
1 工程概况
1 .1 地理位置
北京地铁五号线和平里北街站位于和平里西街与和平里北街的交叉路口,沿和平里西街规划道路中心线呈南北纵向布置,车站主体北端跨交叉路口,东北风道临近且平行于和平里北街道路及民族楼6号楼(见图1)。

1 .2 结构概况
本工程为明挖顺作的地下二层岛式车站,基坑长170 4m,宽21 7m,深16 2~18 2m。车站主体结构采用两层三跨现浇钢筋混凝土闭合式框架结构。车站主体及双层风道围护结构采用ф800钻孔灌注间排桩,桩距为1 6m;其余单层风道及通道的围护结构采用ф600钻孔灌注间隔排桩,桩距1 2m; 桩间采用钢丝网喷混凝土护面。支撑采用ф609钢支撑,盾构井基坑设置4道横向水平支撑,车站主体标准段设置3道横向水平支撑(见图2)。

1 3 工程地质
本站的地质主要由第四纪粘性土、砂及碎石类土构成,其下部广泛分布第三纪地层。各土层自上而下依次为:
(1) 第一层为填土层,稍湿,含砖渣、灰渣等,层厚2m左右。
(2) 第二层为粉土、粉质粘土和中细砂层的互层,局部有粉细砂透镜体。层厚为18~20m,地基承载力标准值为130~220kPa。
(3) 第三层为第四纪晚更新世冲洪积层卵圆石砾、中粗砂和砂卵石层,本层埋深为20m左右,层厚为18m左右。卵石直径2~40mm。地基承载力标准值:中粗砂层为210~240kPa,卵圆石砾层为230~350kPa。
1 4 水文地质条件
(1) 上层滞水:该层水位标高为38 94~41 66m,水位埋深为2 46~4 72m,主要接受大气降水和绿地灌溉水垂直渗透补给和管沟渗漏补给。
(2) 潜水:该层水位标高为30 38~30 77m,水位埋深为13 05~13 35m,地下水径流方向为自西向东,与线路方向近于直交。
(3) 承压水:水位标高为17 66~18 41m,水位埋深为25 02~26 00m,地下水径流方向为自西向东,与线路方向近于直交。
2 几个问题的处理方法
2.1 施工期间的管线道路改移
本车站位于北京和平里北街与和平里西街的交叉路口下。现状交叉路口南侧的和平里西街东侧为一片小公园和临时建筑物,均侵入规划的道路红线范围。路口以北的和平里西街两侧均为农贸市场的临时建筑和摊位。和平里西街规划红线宽为65m,规划道路尚未实施,其现状道路为7m宽,车流量小,也无公共交通车辆行驶。和平里北街南侧是以百货、副食、餐厅为主的沿街商店,北侧是农贸市场。和平里北街是该地区东西向的交通干道。该车站位于规划要求的旧城改造开发区拆迁范围,现状道路狭窄,车流量小,周围房屋低矮破旧,需拓宽改造现状道路。并且要求在施工过程中不能断道,所以在其施工时考虑了第二次道路及管线改移。各种管线应根据各自位置和埋深与车站的关系,分别涉及到管线改移、支吊和保护等几个方面的问题在此处不作介绍。
2.2 施工期间的交通疏解
在和平里北街与车站相交的地方,为保证主体结构施工期间和平里北街有双向四车道的通行能力,及6m宽的非机动车道和人行道。可以采用以下处理办法来解决。
(1)一种方案是在车站主体与和平里北街相交处20m范围设置两道封堵墙,首先浇注北端的主体,在北端主体施工完毕后,恢复其道路行驶能力,让和平里北街倒边通行,然后再按步骤打掉临时封堵墙,浇注南边主体。此方案在实施过程中造成极大浪费,还会使施工期限延长,另还会使主体结构本身的整体性受到一定的影响。
(2)另一种方案是在和平里北街方向的车站主体围护桩顶搭设20m宽的临时军用便桥。其下面的基坑内的土只有在军用便桥的两边向外掏,虽然这样增加了施工难度,但此举措,一方面解决了车站施工过程中车辆受阻的实际问题,另一方面也能使车站的主体结构施工能整体完成。(详见图3)。

附属工程施工期间及道路倒边后,东西向行驶的车辆可通过在紧邻和平里北街北侧的车站上铺设的20m宽的临时道路通行,维持既有14m宽双向四车道通行能力,同时还保证有6m宽的非机动车道及人行道。横跨和平里北街的通道采用暗挖法施工,地面将不受影响。
南北向的和平里西街同道路倒边前,维持既有两车道通行能力。在施工跨越和平里西街的西北出入口人防段时,将和平里西街部分道路临时改移到主体结构上,也能保证既有的通行能力。
总之,交通疏解按方案二实施后,车站施工期间的东西、南北向交通都畅通无阻,也省时省事,还节约投资成本,而且主体结构的施工也能保证了其连续性、安全性。
2.2 民族楼6号楼边上东北风道基坑的加固处理
东北风道基坑边上的民族楼6号楼,是建于50年代的住宅楼,已鉴定为危楼。但在北京地铁五号线施工期间,民族楼6号楼不撤除,故必须对房屋进行保护,对风道基坑进行加固,以保证民族楼的绝对安全。
2.2 1 东北风道周边建筑物调查、管线调查及相对关系
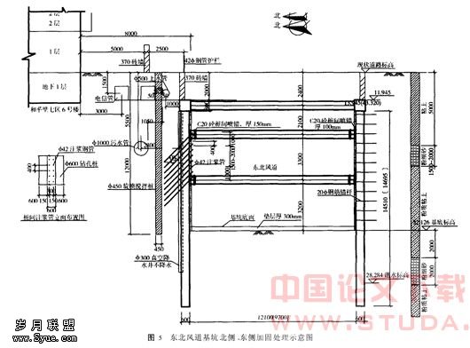
东北风道紧贴民族楼6号楼,相对位置为平行布置,平行长30 8m,基坑北侧边缘距民族楼阳台仅7 5m,中间存在有一条?500自来水钢管,一条?1000混凝土污水管,2条电信光缆。东北风道和附近建筑物、地下管线的相对关系(见图4)。
2.2 2 民族楼6号楼的保护措施
根据和平里北街站车站主体的开挖及结构施工时引起的地表沉降分析,为保证现有状况的民族楼6号楼安全,把6号楼沉降控制到最小,不大于12mm,其预警值为70%。采取以下施工措施:
(1)施作止水围幕。在东北风道基坑东侧和北侧即东北风道基坑与民族楼6号楼之间靠近基坑围护桩外侧施做单排?旋喷搅拌桩,以形成一道止水帷幕,防止地层失水造成沉降。
(2)在土方开挖前20天对东北风道基坑南侧采用轻型井点进行降水,北侧不降水。

(3)土方开挖过程中在基坑北侧和东侧围护桩间粉细砂层上下各1m范围内施打?42小导管,注超细水泥浆,水灰比为0 75~1,注浆压力控制在0 3~0 5MPa。在基坑北侧、东侧桩间挂网喷射C20混凝土,桩间厚150mm;基坑南侧桩间挂网喷射C20混凝土,桩间厚100mm。
(4)加密钢支撑并调整支撑间距。在与民族出版社6号楼平行38 8m的范围内,东北风道结构钢支撑由原设计两道支撑加密到三道支撑。加大钢支撑的预加应力,由原设计应力值的50%提高到70%,竖向第一道支撑预加应力为280kN,第二道支撑预加应力为560kN,第三道支撑预加应力为420kN。
(5)加大基坑垫层厚度,由原设计16cm改为30cm,混凝土等级为C20。以及时控制基坑底部的桩体变形,减小桩体位移。
(6)在结构混凝土施工时,严格按照设计和施工规范进行,结构混凝土没有达到设计要求拆除支撑,坚决不能拆除支撑。
(7)车站开挖过程中严格按照施工组织设计的施工程序进行,台阶式分层开挖,及时架设钢围檩及钢支撑,确保不欠撑,钢围檩与桩间填充C25水泥砂浆,保证接触密实。
(8)在结构混凝土施工中,层板结构混凝土强度达到设计强度的70%以上后才可拆除相邻一层围护结构的横向支撑。
(9)严格控制降水量。车站开挖前做到一次性降水到设计基坑底1 0m,车站开挖过程中加强挡水,减小楼房附近的地下水土流失。
(10)基坑北侧?1000污水管渗漏水较严重,对其采用PVC防水材料做内衬管进行导流,以减少渗漏。
(11)结构施工期间对围护结构和地面建筑物进行监测,监测项目包括:桩顶水平位移、桩身变形、钢支撑轴力、地表沉降、地下水位、楼房水平和倾斜等。严密监测地层和地表变形情况,做到每日一报,并及时进行分析反馈。
(12)施工应遵循“分段、分层、对称、平衡、快速开挖、快速支撑、快速施工”的原则,充分利用时空效应,减少变形量(见图5)。

按此方案对东北风道基坑进行止水、加固等措施,在施工过程中对民房和围护桩进行严密监测,其结果是民房的最大沉降量累计只有5mm左右,桩的水平位移也只有5mm左右,未到设计时的沉降预警值,达到了满意的效果。既保护了民族楼6号楼和东北风道基坑的安全,也保证了工期的如期完成。
3 结束语
本工程的围护结构及支撑体系安全、稳定。施工过程中对周边建筑、道路的变形监测结果表明,所采用的基坑支护综合处理方案是有效的,充分发挥了围护结构及支撑体系的作用。达到了施工周期短、投资少和保证基坑及周边建筑安全的目的。
[1] GB50157-2003,地下铁道设计规范[S].
[2] 龚哓南,高有潮.深基坑工程设计施工手册[M].建筑出版社,1998 9(1).











