现代住宅小区地下车库的给排水设计对策
作者:贾安强 郝永刚 彭颖 王德林
摘要:随着的,居住区地下(或半地下)停车库的规模加大,功能增强,档次提高,给排水设计的内容也越来越多。本文针对设计中遇到的实际问题,提出其解决方案。
关键词:住宅;地下车库;消防;给排水;设计
1 概述
在沿海发达地区,随着国民经济的蓬勃发展和人民生活水平的不断提高,家庭汽车保有量迅速增加,一些居住区1:1的车位配置标准已显不足。再加上人们对居住环境的要求越来越高,小桥流水、鸟语花香逐渐成为小区园林建设的基本元素。这些都使得建造大型、特大型地下(或半地下)停车库成为未来小区建设的必然趋势。
笔者结合珠海华发新城三期(以下简称新城三期)地下车库的给排水设计实例,对地下车库给排水的设计要点和设计中遇到的实际问题逐一进行阐述。
2 住宅小我地下车库的建筑特点
一是规模大,车库的建筑面积大。新城三期地下车库共72000m2,有十八个防火分区,停车位达2000个。
二是管线多。由于整个新城三期的27栋住宅均建在车库上,地下室顶板上覆土深度有限(扣除找平、防水后H=800mm),且顶板上又有大量的水景、园建,所以为方便施工和后期管理,各种管线(除绿化用水、雨排水、污排水管道外)均需敷设在地下室的顶板下。

三是环境要求高。为了保证车库的通风及采光,在地下室侧壁周边做了高窗:同时在顶板上也开了许多洞口,洞口总面积约4000m2。洞口下设树池、水景池,仅新城三期地下室就有树池、水景池共120处之多。
3 现代住宅小区地下车库的给排水设计要点
3.1确定给排水系统的组成
根据上部住宅、园林水景和车库本身的建筑功能,明确整个给排水系统的划分。一般包括:各个分区的生活给水系统、特色景观补充水系统、绿化洒水系统、人工水体的循环水处理系统、游泳池循环水处理系统、自动喷水灭火系统、消火栓系统和排水系统。
3.2确定设备机房的位置
车库内的给排水设备房有:生活给水加压泵房、消防水泵房、景观水体及游泳池的循环水处理机房。生活给水加压泵房应位于小区给水负荷的中心,以简化配管,节约能耗。消防水泵房宜与生活给水泵房合建。循环水处理机房的位置应结合水体及游泳池的位置确定,距离越近越好。机房的选址还要以不牺牲停车位为原则。
3.3确定各种管道的布置
雨排水、污排水管道及绿化用水干管宜敷设在地下室顶板覆土层内,其他各类管道均敷设在地下室的顶板下,以利于施工和维护。
4 设计中遇到的问题及对策
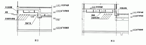
4.1如何充分利用有限的净高资源 新城三期地下车库层高3.6m,扣除800mm的大梁,大部分地方净高只有2.8m,而甲方为降低土建造价,不愿意再加大车库的净高,为满足规范和使用要求,留给设备专业的走管空间就相对较小。这就要求我们在管线布置时要统一协调,尽量避免干管交叉,如有交叉,交叉处管道上弯:较长的管道尽量分段找坡,局部增设排气阀和放水阀:支管尽可能翻至次梁下安装。当然,在管道的布置过程中,我们还尽可能利用一些有利条件,例如顶板下的一些凸起空间,见图2、图3。

4.2消防电梯排水
《高层民用建筑设计防火规范》(GB50045-95)中6.3.3.11条规定:“消防电梯井底应设排水设施,排水井容量不应小于2.00m3,排水泵的排水量不应小于10L/s。”常见的做法是在消防电梯旁另设集水坑,但这种做法既增加投资,又给结构设计带来诸多麻烦。经过论证,笔者采用了加深电梯基坑的方式,见图4。

图4中H2的深度要求至少满足水泵、管道的安装,调节容积不小于2m3,当调节容积不足时,可以利用部分H1(产品样本上要求的最小基坑深度)的底部空间,但前提是不影响电梯的正常使用,不浸渍电梯配件(包括平衡锤等)。
4.3地下树池的排水
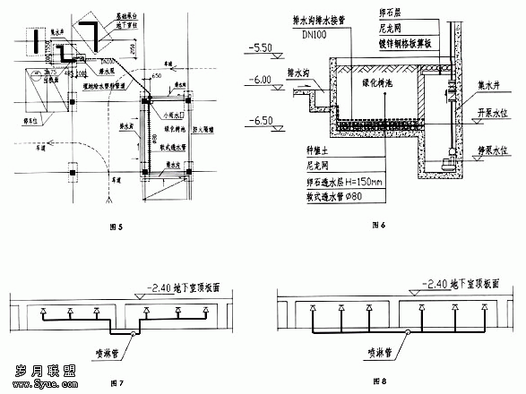
排水量按顶板洞口面积的雨水量,若洞侧有建筑物侧墙,则附加其受水面积的1/2。有的树池的集雨量较大,采用单泵排水会导致集水井调节容积的增加,可考虑选用两台水泵,平时互为备用,最不利时双泵同时投入运行。至于集水井的位置则显得较为棘手。甲方要求集水井设于树池外,且不能影响美观、影响车位的销售,结果,许多集水坑都只能藏身于偏僻角落,见图5。
这种做法的主要弊端是:大量的管线预埋在底板下,增加了管道渗水的可能,尤其是沿海地区地下水位较高,一旦管道断裂或接口松动,就会造成地下水的大量渗入,致使水泵经常运转,增加能耗。华发新城一期地下室就有这种渗水情况的发生。笔者认为图6的做法较为合理,集水井设于树池内,井盖板作为雨水口箅板,用卵石铺盖,既满足了排水,又起到美化环境的作用。整个系统无预埋在底板下的管线,故较为安全实用。
值得注意的是,集水井的开泵水位不能超过树池底部卵石透水层的顶面,否则可能会引起种植土长期浸水,从而导致植物烂根而死。
4.4车库入口处喷头的布置

在地下车库入口处,由于坡道由内向外逐渐升高,路面与顶板的距离不断变小,最小处甚至不足23m,这使得该段坡道上无法设置直立或下垂型喷头。而根据《自动喷水灭火系统设计规范》(GB50084—2001)中7.1.12条的规定,地下停车库属于中危险级Ⅱ级,不能采用边墙型标准喷头。但是否就意味着不能采用其他类型的边墙型喷头呢?规范对此并没有明确的解释。笔者认为在坡道处设置边墙型扩大覆盖喷头是可行的,只要保证两排相对喷头交错布置,设计喷水强度不小于8L/min.m2即可,这种做法也得到了消防主管部门的认可。
4.5合理布置喷淋管道,最大限度地节约投资
在地下车库的喷淋设计中,按结构梁格布置直立喷头已是不争的事实。但是如何配管才能做到合理呢?对比图8和图7,显然图7比图8更合理,它一方面提高了车库的使用空间,同时又减少了管材的用量,尤其是当喷头的连接立管较长、喷头数量较多时,这种节约会相当明显。
合理地布置配水干管同样也可以节约投资。图9的做法在一些设计中是经常出现的。而对于此种情况,在华发新城三期地下车库的喷淋系统设计中,我们则按图10的方式进行配管。经过比较,两种方案在管材上的成本相差无几,但管件上的成本就相去甚远。因为图9中采用的卡箍接头的数量是图十的8倍!
4.6如何避免排水干管进入地下车库
由于车库顶板面积大、覆土浅,为保证快捷、顺畅地排水,排水管应就近接向地下室的四周。然而在实际工程中,地下室顶板往往高出周边的市政道路。针对此种情况,一般的做法见图11。该做法的主要缺点是:影响车库的美观;会因预埋防水套管位置不准而给安装带来麻烦;容易漏水。笔者则采用在地下室外墙设置局部凹壁的办法,见图12。其优点是:不需预埋套管,灵活性强;管道与地下室完全分开,无漏水隐患。

4 结语
在满足日益复杂的功能的前提下,要求居住区地下车库的给排水设计既经济台理,又美观实用,使地下车库真正成为居住小区的又一道风景。这种人性化的设计要求将成为未来给排水设计的必然趋势。











