乡镇企业科教大楼暖通空调设计及体会--兼谈风冷式冷水机组运行能耗及噪声控制
来源:岁月联盟
作者:佚名
时间:2010-08-24
提要: 本文介绍了福建省乡镇科教大楼的空调、通风、防排烟设计。针对该科技大楼功能复杂的特点,分析了选用风冷式冷水机组作为冷源的合理性,了工程设计体会。
关键词:空调、通风、防排烟、风冷式冷水机组、能耗、噪声、设计体会。 |
|
一、 工程概况: 乡镇企业科教大楼座落于福州市东浦路。地下一层,地上二十一层,总建筑面积26000㎡,地面总高度为75.05m。该工程是一座集展示厅、厨房餐厅、办公实验室、住宅于一体的多功能综合性高层建筑。地下一层为汽车库、设备用房(包括高低压配电房、发电机房、水池泵房),战时为人防区,一层为展示厅及架空停车场,二层为展示厅,三至四层为厨房餐厅,五至九层为科教、实验办公室、十至十二层为招待所,十三至二十一层为住宅,屋顶为电梯机房及增压罐室。
二、 空调冷源的确定: 本大楼一至十二层由七家单位组成,各家单位在空调系统管理、计费、维护等方面均要求各自独立操作、分别计量,且由于各家单位使用功能、时间不同,若采用中央空调系统必然造成能源的浪费,给管理上带来不便。故本大楼在空调方案确定时未采用大型中央空调系统,而将大楼分成七个独立的空调系统:一、二层展示厅为一系统,三、四层餐厅为一系统,五、六、九层科教实验办公室各为一系统,七、八层科教实验办公室为一系统,十至十二层招待所(包括会议室)为一系统。每个系统设置一台风冷式冷水机组和一台冷水泵,均放在屋顶上,节省了地下车库面积。如此划分系统,安装、使用、计费均较方便,又可节省运行费用。故该方案得到了建设单位的赞同和认可。 本工程在空调冷源选择时,对风冷式冷水机组和水冷式机组在初投资和运行能耗两个方面进行了分析比较;最终选择风冷式冷水机组。虽然水冷式冷水机组初投资比风冷式冷水机组要低33%左右,但由于增加了冷却水系统(冷却塔、冷却水泵、管道等),辅助设备及管道,要增加一部分投资;另外,由于采用了风冷式冷水机组,节省了地下机房占地,至少可增加6个车位,每个车位售价10万元,可增加销售收60万元。因此,选用风冷式冷水机组,初投资不是设计考虑的主要问题,而对运行能耗进行全面分析比较,才能做出合理的选择。根据有关研究资料表明,水冷式冷水机组,部分负荷性能值IPLV(EER)值比风冷式冷水机组的IPVL(EER)值大3.61%,也就是说,风冷式冷水机组全年运行能耗比水冷式冷水机组大3.61%。为了使分析具有可比性,必须综合考虑整个系统冷源的耗电量。目前水冷式冷水机组的冷却水系统中,当机组运行在部分负荷时系统配置的冷却塔风机和冷却水泵绝大多数仍以满负荷运行。但在风冷式冷水机组中,一般设置多台冷凝器,配置多台冷凝风机、冷凝风机随冷凝器的热负荷的变化而进行台数调节。冷凝风机的数量越多,其在冷水机组部分负荷运行时的能耗就会越低。(本工程选用的风冷式冷水机组,其冷凝风机多达8台,使得机组的运行能耗大大降低)。就全年运行而言,水冷式冷水机组配置的水泵和冷却风机的耗电量电量比风冷式冷水机组所配置的冷凝风机的耗电量大得多。综合考虑机组耗电量和与其配套的辅助设备耗电量后,两者的总耗电量相关不大。所以,笔者认为在选择设计冷源方案时应进行综合分析比较确定。设计时考虑到每个系统容量小、控制面积不大的特点,冷源综合使用系数取值较高;另外风冷机组、部分管道安装在屋面,冷损失相对高些,空调管道的输送热损失亦应取较大值。在设备选型时,这些因素综合考虑,将计算冷负荷作为冷源设备容量来选择风冷机组。具体设备选型见下表。 | 系统划分及设备选型 | | 系统编号 | 使用场所 | 建筑面积(㎡) | 风冷机组 型号规格 | 冷水泵型规格 | 制冷量(104Kcal/h) | | CWS1 | 一、二层展示厅 | 1900 | UWA162JY1 | ISG100-160A | 37 | | CWS2 | 三、四层餐厅 | 1800 | UWA192JY1 | ISG100-160 | 46 | | CWS3 | 五层实验科教办公 | 1150 | UWA75JY1 | ISG80-160A | 17 | | CWS4 | 六层实验科教办公 | 1150 | | ISG80-160A | 17 | | CWS5 | 九层实验科教办公 | 1150 | UWA75JY1 | ISG80-160A | 17 | | CWS6 | 七、八层实验科教办公 | 2300 | UWA138JY1 | ISG100-160A | 31.60 | | CWS7 | 十至十二层招待所(会议室) | 3000 | UWA138JY1 | ISG100-160A | 31.60 |
|
三、 室内外设计参数: 1、 室内设计参数:
| 空调房间 | 室内温度 (℃) | 相对湿度 (%) | 新风量 (m3/h.人) | 噪声 dB(A) | 空调方式 | | 展示厅 | 26~28 | 55~65 | 9 | ≤50 | 全空气系统 | | 餐厅 | 24~26 | 55~65 | 18 | ≤50 | 全空气系统 | | 科教实验办公室 | 25~27 | 55~65 | 25 | ≤45 | 风机盘管加新风 | | 招待所 | 25~28 | 55~65 | 30 | ≤40 | 风机盘管加新风 |
2、 室外空气计算参数: 夏季空调室外干球温度:35.2℃ 夏季空调室外日平均干球温度:30.4℃ 夏季空调室外温球温度:28℃
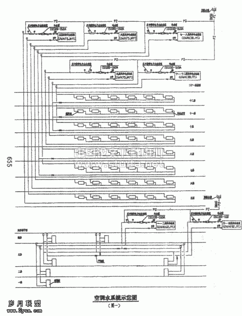
四、 空调水系统: 本工程空调水系统采用双管制闭式循环系统。CWS1~CWS2两个空调水系统采用异程式,每层回水支管上设置平衡阀:CWS3~CWS7五个空调水系统竖向立管采用异程式,横向支管采用同程式,CWS6~CWS7两个空调水系统横向回水支管上设置平衡阀,以确保水力平衡及冷水流量按设计要求分配。(见图一)  设计中选用了反冲排污型水处理仪,设在冷水机组的管道上。这种设备自带过虑网,可省去Y形过滤器,冲洗方便,既可防垢又可过滤、节省了管路设备成本。
|
五、 空调风系统:
一至四层展示厅及餐厅均采用全空气式空调方式,每层设置两台柜式空调箱,采用散流器下送风,集中侧回风(见图二)。五至十二层采用风机盘管加新风的空调方式。为提高室内吊顶高度风机盘管采用侧送风方式;对于进深较深(>6m)的房间采用50pa高静压风机盘管。每层设置一台吊挂式新风机,以节约占地面积(见图三)。

图二 二层空调平面图

图三 五-九层空调风管平面图
六、 自动控制: 空调箱设电动二通调节阀及温度控制器,根据回风温度对水量进行比例调节;风机盘管设电动二通阀及带三速开关的室内温度控制器,根据回风温度对水量进行二位调节,使室内温度控制在设定的范围内。冷水机组供回水管路间设压差控制器、电动旁通阀,并配备一套手动调节装置,可进行人工调节,以确保空调系统运行安全可靠。
七、通风设计: 1、 卫生间排气,按10次/h换气次数设置排气扇,大楼屋顶设有屋顶风机。
2、 厨房排气量为26400m
3/h,其中65%通过炉灶下方的排气罩排至室外;35%由厨房全面换气排出,风时按排气量的80%设计送风系统。
3、 地下室各设备用房设机械排风进风系统。地下车库按6次/h换气次数设计排风系统,靠近车道部位采用进风,远离车道的部位按换气次数5次/h设计机械进风系统。
八、防排烟设计: 本工程楼梯间、前室及消防电梯合用前室均采用正压送风系统,内走道设机械排烟系统,风机入口设280℃自动关闭的防火阀。地下车库及各设备用房均设有排烟系统,并设有风量不小于50%排烟量的送风系统,排烟系统、排风系统合用。
九、人防设计: 本工程设两个防护单元,每个防护单元的防护人数为600人,设三台SR900电动脚踏两用风机,一台LXP(X)-3型油网过滤器,两台SR78-100型过滤吸收器,并设有排风系统。
十、设计体会: 1、 风冷式冷水机组的噪声、振动对周围环境的影响是设计中应考虑的问题,压缩机的噪声大小因不同机型不同安装方式而不同。全封闭比半封闭压缩机噪声低。螺杆式比活塞式压缩机噪声低;多台小型制冷量压缩机比单台相同制冷量压缩机的噪声低。轴流风机噪声因不同机翼和不同转速而不同,配八极电机比配六极电机的噪声低。设计应根据周围情况及噪声要求,灵活选用,力求合理。为了降低噪声、振动,风冷机组、水泵均作减振基础,冷水机组、冷水泵进出口均设软接头,风冷机四周设消声壁。
2、 本工程选用大金风冷机组,其测试参数与设计参数(温度、温差)不同,这就要求出的冷量经换算后才能选型;另其样本提供的用电量为设备输出电量,如不注意以此提供给电专业,势必造成用电量偏小。
3、 凝结水排放问题,本工程标准层风机盘管系统选用了4根凝结水立管,靠柱边立下,横支管按0.8%坡度坡向立管。管线比单侧排放减短了一半,吊顶高度亦相应提高。管线短漏水的可能性减小,安装方便,坡度也好控制。
4、 平衡阀的设置,在异程水系统横支管上设置平衡阀可起到调节各管路间阻力和分配流量的作用,达到所需设计流量,调节方便简单。设置了定流量平衡阀,就可以控制流量,不致于发生意外事故。
5、 笔者在设计办公室、商场、餐厅、KTV包厢等场所时,适当地设置一定数量的排气扇或排风系统,以排除室内污蚀空气,有利于空调新风的补进,改善空气品质。《强制性条文》规定室内保持正压的空气调节房间,其正压值不应大于50pa。所以笔者认为在做好新风系统设计的同时。亦应组织设计好排风系统。
6、 地下室室外的排气孔出风口速度不宜过大,尽可能不要设在路边,且应作消声处理,否则噪音很大,影响环境。本工程在设计时尽可能降低出风口流速,选用消声型风机和消声百叶风口。同时风机参数选用要合适,风机余压不宜选择过大,控制噪声,满足环保部门的要求。
十一、
1. 夏源龙等,常有风冷式热泵机组风冷式冷水机组的噪声测量和分析,空调暖通技术
2. 丁云飞等,风冷和水冷式冷水机组全年运行能耗比较分析,空调暖通技术